28 January 2014 Page 1

20 January 2014
Shire of Esperance
Ordinary Council
An Ageda Briefing Session of the Shire of Esperance will be held at Council Chambers on 21 January 2014 commencing at 1pm to consider the matters set out in the attached agenda.
An Ordinary Council meeting of the Shire of Esperance will be held at Council Chambers on 28 January 2014 commencing at 4pm to consider the matters set out in the attached agenda.
W M (Matthew) Scott
Chief Executive Officer
Ordinary Council: Agenda
28 January 2014 Page 2
DISCLAIMER
No responsibility whatsoever is implied or accepted by the Shire of Esperance for any act, omission or statement or intimation occurring during Council or Committee meetings. The Shire of Esperance disclaims any liability for any loss whatsoever and howsoever caused arising out of reliance by any person or legal entity on any such act, omission or statement or intimation occurring during Council or Committee meetings. Any person or legal entity who acts or fails to act in reliance upon any statement, act or omission made in a Council or Committee meeting does so at that person’s or legal entity’s own risk.
In particular and without derogating in any way from the broad disclaimer above, in any discussion regarding any planning application or application for a licence, any statement or intimation of approval made by a member or officer of the Shire of Esperance during the course of any meeting is not intended to be and is not to be taken as notice of approval from the Shire of Esperance. The Shire of Esperance warns that anyone who has any application lodged with the Shire of Esperance must obtain and should only rely on written confirmation of the outcome of the application, and any conditions attaching to the decision made by the Shire of Esperance in respect of the application.
ETHICAL DECISION MAKING AND CONFLICTS OF INTEREST
Council is committed to a code of conduct and all decisions are based on an honest assessment of the issue, ethical decision-making and personal integrity. Councillors and staff adhere to the statutory requirements to declare financial, proximity and impartiality interests and once declared follow the legislation as required.
ATTACHMENTS
Please be advised that in order to save printing and paper costs, all attachments referenced in this paper are available in the original Agenda document for this meeting.
Ordinary Council: Agenda
28 January 2014 Page 3
Disclosure of Financial, Proximity
or Impartiality Interests
Name of Person Declaring the Interest:
![]()
Position: Date of
Meeting:
This form is provided to enable members and officers to disclose an Interest in the matter in accordance with the regulations of Section 5.65, 5.70 and 5.71 of the Local Government Act and Local Government (Administration) Regulation 34C.
|
Interest Disclosed
Nature of Interest:
Type of Interest: Financial Proximity Impartiality
|
|||
|
Interest Disclosed
Nature of Interest:
Type of Interest: Financial Proximity Impartiality
|
|||
|
Interest Disclosed
Nature of Interest:
Type of Interest: Financial Proximity Impartiality
|
![]()
Signature: Date:
|
Office Use Only:
Officer Date |
Ordinary Council: Agenda
28 January 2014 Page 4
Declaration
of Interest (Notes for Your Guidance)
A member who has a Financial Interest in any matter to be discussed at a Council or Committee Meeting, which will be attended by the member, must disclose the nature of the interest:
a) In a written notice given to the Chief Executive Officers before the Meeting or;
b) At the Meeting, immediately before the matter is discussed.
A member, who makes a disclosure in respect to an interest, must not:
c) Preside at the part of the Meeting, relation to the matter or;
d) Participate in, or be present during any discussion or decision-making procedure relative to the matter, unless to the extent that the disclosing member is allowed to do so under Section 5.68 or Section 5.69 of the Local Government Act 1995.
Notes on Financial Interest (For your Guidance)
The following notes are a basic guide for Councillors when they are considering whether they have a Financial Interest in a matter.
1. A Financial Interest requiring disclosure occurs when a Council decision might advantageously or detrimentally affect the Councillor or a person closely associated with the Councillor and is capable of being measured in money terms. There are expectations in the Local Government Act 1995 but they should not be relied on without advice, unless the situation is very clear.
2. If a Councillor is a member of an Association (which is a Body Corporate) with not less than 10 members i.e sporting, social, religious ect, and the Councillor is not a holder of office of profit or a guarantor, and has not leased land to or from the club, i.e, if the Councillor is an ordinary member of the Association, the Councillor has a common and not a financial interest in any matter to that Association.
3. If an interest is shared in common with a significant number of electors and ratepayers, then the obligation to disclose that interest does not arise. Each case need to be considered.
4. If in doubt declare.
5. As stated in (b) above, if written notice disclosing the interest has not been given to the Chief Executive Officer before the meeting, then it must be given when the matter arises in the Agenda, and immediately before the matter is discussed.
6. Ordinarily the disclosing Councillor must leave the meeting room before discussion commences. The only exceptions are:
6.1 Where the Councillor discloses the extent of the interest, and Council carries a motion under s.5.68(1)(b)(ii) of the Local Government Act; or
6.2 Where the Minister allows the Councillor to participate under s.5.69(3) of the Local Government Act, with or without conditions.
Interests Affecting Proximity
1) For the purposes of this subdivision, a person has a proximity interest in a matter if the matter concerns;
a) a proposed change to a planning scheme affecting land that adjoins the person’s land;
b) a proposed change to the zoning or use of land that adjoins the person’s land; or
c) a proposed development (as defined in section 5.63(5)) of land that adjoins the person’s land.
2) In this section, land (the proposal land) adjoins a person’s land if;
a) The proposal land, not being a thoroughfare, has a common boundary with the person’s land;
b) The proposal land, or any part of it, is directly across a thoroughfare from, the person’s land; or
c) The proposal land is that part of a thoroughfare that has a common boundary with the person’s land.
3) In this section a reference to a person’s land is a reference to any land owned by the person or in which the person has any estate or interest.
Interests Affecting Impartiality
Definition: An interest that would give rise to a reasonable belief that the impartiality of the person having the interest would be adversely affected, but does not include an interest as referred to in Section 5.60 of the ‘Act’.
A member who has an Interest Affecting Impartiality in any matter to be discussed at a Council or Committee Meeting, which will be attended by the member, must disclose the nature of the interest;
a) In a written notice given to the Chief Executive Officers before the Meeting or;
b) At the Meeting, immediately before the matter is discussed.
Impact of an Impartiality Closure
There are very different outcomes resulting from disclosing an interest affecting impartiality compared to that of a financial interest. With the declaration of a financial interest, an elected member leaves the room and does not vote.
With the declaration of this new type of interest, the elected member stays in the room, participates in the debate and votes. In effect then, following disclosure of an interest affecting impartiality, the member’s involvement in the Meeting continues as if no interest existed.
THIS PAGE HAS INTENTIONALLY BEEN LEFT BLANK
Ordinary Council: Agenda
28 January 2014 Page 7
TABLE OF CONTENTS
3. APOLOGIES & NOTIFICATION OF GRANTED LEAVE OF ABSENCE
4. APPLICATIONS FOR LEAVE OF ABSENCE
5. ANNOUNCEMENTS BY THE PERSON PRESIDING WITHOUT DISCUSSION
6. DECLARATION OF MEMBERS INTERESTS
6.1 Declarations of Financial Interests – Local Government Act Section 5.60a
6.2 Declarations of Proximity Interests – Local Government Act Section 5.60b
6.3 Declarations of Impartiality Interests – Admin Regulations Section 34c
8. PUBLIC ADDRESSES / DEPUTATIONS
11. DELEGATES’ REPORTS WITHOUT DISCUSSION
12. MATTERS REQUIRING A DETERMINATION OF COUNCIL
12.1.1 Consideration of Modification to Restrictive Covenant - Lots 1 and 5 Wharton Road, Condingup
12.1.2 Development Application for Oversize Outbuilding on Lot 805 (45) Barney Road, Chadwick
12.1.3 Proposed Road Dedication - Lot 123 Windich Street, Esperance
12.1.5 Esperance Goldfields Surf Lifesaving Club Building - Update on Negotiations
12.3.1 Rates Concession - Myrup Fly-in Estate - Lot 11
12.3.2 Tender 1113 - Shark Lake Agricultural Land Lease
12.3.3 Lease - Old Matron's Quarters - Museum Village
12.3.4 Lease - Dalyup Community Hall
12.3.5 Financial Services Report - December 2013
12.5.2 Appointment of Community Members to Council Committees
14. Motions of which Notice has been Given
15. MEMBERS QUESTIONS WITH OR WITHOUT NOTICE
16. URGENT BUSINESS APPROVED BY DECISION
17. MATTERS BEHIND CLOSED DOORS
17.1 Objections to Proposed Lease - Esperance Airport Car Hire Desk 4
Ordinary Council: Agenda
28 January 2014 Page 9
SHIRE OF ESPERANCE
AGENDA
Ordinary
Council Meeting
TO BE HELD IN Council Chambers ON 28 January 2014
COMMENCING AT 4pm
1. OFFICIAL OPENING
2. ATTENDANCE
Members
Cr M Heasman President Town Ward
Cr V Brown Deputy President Rural Ward
Cr N Bowman Rural Ward
Cr P Griffiths Town Ward
Cr K Hall Town Ward
Cr L McIntyre Town Ward
Cr R Horan Town Ward
Cr B Stewart, JP Town Ward
Cr B Parker Rural Ward
Shire Officers
Mr W M (Matthew) Scott Chief Executive Officer
Mr S Burge Director Corporate Services
Mr G Harris Director Engineering Services
Mr R Hilton Director Community Services
Mr R Hindley Director Development Services
Ms H Hall Minutes Secretary
Members of the Public & Press
3. APOLOGIES & NOTIFICATION OF GRANTED LEAVE OF ABSENCE
4. APPLICATIONS FOR LEAVE OF ABSENCE
5. ANNOUNCEMENTS BY THE PERSON PRESIDING WITHOUT DISCUSSION
6. DECLARATION OF MEMBERS INTERESTS
6.1 Declarations of Financial Interests – Local Government Act Section 5.60a
6.2 Declarations of Proximity Interests – Local Government Act Section 5.60b
6.3 Declarations of Impartiality Interests – Admin Regulations Section 34c
7. PUBLIC QUESTION TIME
8. PUBLIC ADDRESSES / DEPUTATIONS
9. Petitions
10. CONFIRMATION OF MINUTES
11. DELEGATES’ REPORTS WITHOUT DISCUSSION
12. MATTERS REQUIRING A DETERMINATION OF COUNCIL
Consideration of Modification to Restrictive Covenant - Lots 1 and 5 Wharton Road, Condingup
|
Author/s |
Richard Hindley |
Director Development Services |
|
Authorisor/s |
Richard Hindley |
Director Development Services |
File Ref: F13/351
Applicant
Whelans Town Planning on behalf of JW, CJ, PW and G Royle
Location/Address
Lots 1 and 5 Wharton Road, Condingup

Executive Summary
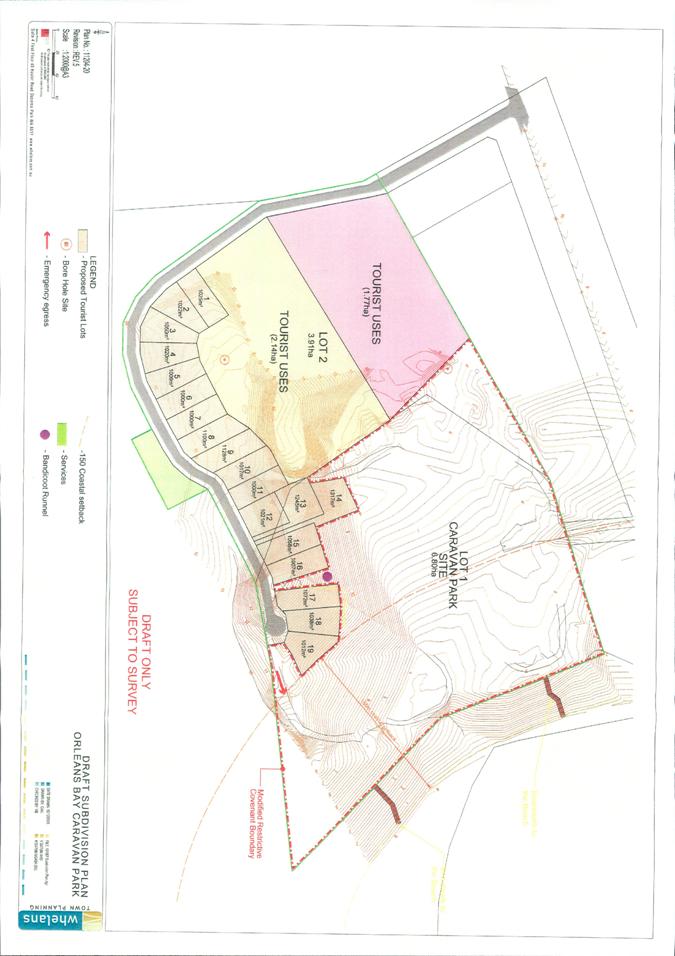
For Council to consider supporting the modification of the Restrictive Covenant on Lots 1 and 5 Wharton Road, Condingup to apply the existing Restrictive Covenant to the extent of the Caravan Park and place a new Restrictive Covenant on the balance of the lots to restrict development to tourism related development.
Recommendation in Brief
That Council advise the Department of Lands that it supports the modification of the Restrictive Covenant to the area of Lots 1 and 5 Wharton Road, Condingup as shown in Attachment C subject to a new restrictive covenant being placed on the balance of Lots 1 and 5 Wharton Road, Condingup to restrict development to tourism related development only.
Background
The former reserve (Reserve 35132) which contained the Duke of Orleans Caravan Park (Lots 1 and 5) was converted to freehold title in 1999 with a restrictive covenant placed under s15 of the Land Administration Act 1997 to protect the site as a ‘Special Site – Caravan Park’ in perpetuity (Attachment A).
The policy at the time of the freeholding of the site provided general direction to:
· Encourage private enterprise to develop caravan parks by offering secure tenure;
· Ensure that appropriate levels of caravan park accommodation are maintained throughout the State;
· Provide for Crown land, which contains strategic tourist accommodation, to be retained as a community asset;
· To protect public access to foreshores where freehold is contemplated of coastal and river line caravan parks;
· Consult with Local Government, Tourism and Planning; and
· Ensure appropriate safeguards are placed on freehold.
In accordance with the above principles a restrictive covenant was placed on the site as part of the freeholding process restricting the use of the site to ‘Special Site – Caravan Park’.
The Shire considered the removal of the restrictive covenant at its Ordinary Meeting on the 25 January 2011 where it resolved (O0111-1552):
That Council defer the consideration of the request until such time as a Scheme Amendment has been formally advertised and brought back to Council for consideration of Final Approval. The Scheme Amendment is to cover all issues raised in this report in addition to all statutory requirements. Considering the removal of the covenant at this stage will ensure that adequate community and servicing agency comments have been received prior to a decision being made.
Council initiated a Scheme Amendment (Amendment No. 12) on the 27 November 2012. The Amendment was referred to the EPA and a formal 42 day advertising period was undertaken. The comments received from the EPA and through advertising were considered by Council in giving its Final Approval to Amendment No. 12 at its Ordinary Meeting on the 28 May 2013 where it resolved (O0513-029):
That Council
1) Note the submissions received in relation to Local Planning Scheme No. 23 Amendment No. 12.
2) Adopt Local Planning Scheme No. 23 Amendment No. 12 with the following modifications:
a) Replace the following clauses:
7.2 All future development on site is to be connected to reticulated sewer to the satisfaction of the Health Department of Western Australia
7.3 All future development on site is to be connected to reticulated water to the satisfaction of the Health Department of Western Australia
b) Insert the following clauses:
6.2 A Dieback Management Plan and Weeds Management Protocols will be undertaken to the satisfaction of the Department of Environment and Conservation of Western Australia prior to any future development of the site.
9.2 Investigations into the water resources at the site are to be undertaken to the satisfaction of the Water Department of Western Australia
9.3 An Urban Water Management Plan will be undertaken as part of any future subdivision of the site
3) Upon receipt of the modified document, Council adopt Local Planning Scheme No. 23 Amendment no. 12 for final approval, by:
a) Reclassifying portions of Lot 1 on Deposited Plan 182598 and Lot 5 on Deposited Plan 187874 from ―Tourist‖ to ―Special Use Zone No. 5‖,
b) Including the specified land and related special provisions within Schedule 4 of the Scheme Text, and;
c) Amending the Scheme Maps accordingly.
4) Authorise the Shire President and Chief Executive Officer to execute Local Planning Scheme No. 23 Amendment No. 12 documentation for forwarding to the Western Australian Planning Commission seeking final approval by the Hon. Minister for Planning.
5) Advise the submitters of Council’s decision in relation to Local Planning Scheme No. 23 Amendment No. 12.
Amendment No. 12 was executed by the Shire and forwarded to the Western Australian Planning Commission seeking the final approval of the Hon. Minister for Planning. The Minister on the advice of the Department of Planning determined that they would not support the amendment. The following is a summary of the rationale used to refuse the Amendment:
· The rezoning proposes a permanent residential use that is not consistent with the requirements of State Planning Policy I State Planning Framework (SPP1) and State Planning Policy 3 Urban Growth and Settlement (SPP3) as it presents an urban settlement in a remote location where services and infrastructure are not guaranteed.
· The amendment does not comply with the intent of State Planning Policy 2.6 State Coastal Planning Policy in terms of development and settlement, as the permanent residential component is not concentrated around an existing settlement and is not utilising existing infrastructure.
· The amendment is inconsistent with Planning Bulletin 83 Planning for Tourism (PB83) as: it is unclear how the permanent residential component will be integrated with other existing and proposed tourist uses and, if the proposal is supported, has the potential to be developed in isolation of the tourism component; and the suitability and sustainability of the permanent residential use does not fit the broader planning and settlement context of the site which is a requirement under SPP1 and SPP3, and PB83.
· The amendment does not comply with the Commission's Development Control Policy 1.1 (DC1.1) Subdivision of Land - General Principles as:
· The proposed development cannot be effectively serviced by essential infrastructure; and
· A licensed service provider has not been identified to provide water and sewerage, and there is no guarantee that such services could be provided.
· The amendment, if supported in its current form, will set an undesirable precedent for the creation of a new settlement in remote locations based primarily on the justification that permanent residential is permitted under PB83, regardless of assessment of its suitability under the broader planning, sustainability and settlement framework.
A copy of the refusal notification for Amendment No. 12 is contained in Attachment B. It should be noted that the Hon. Minister for Planning has advised that there is no objection to the use of the site for tourism purposes and it is suggested that the proposal be reviewed to focus on providing suitable accommodation within what is permitted under its current zoning and reflecting the requirements of the area, namely tourist uses.
A request has now been received by Whelans Town Planning seeking Council support for the modification of the Restrictive Covenant in accordance with the latest subdivision plan. In line with this request it is proposed that the caravan park will remain on the modified covenant, as shown on Attachment C. It is proposed under this request that the balance of Lots 1 and 2 Wharton Road, Condingup will be unencumbered by a restrictive covenant.
Officer’s Comment
In response to the Hon. Minister for Planning refusing Amendment No. 12 the proponent has provided a modified subdivision plan (Attachment C) which complies with the current provisions of Local Planning Scheme No. 23.
The proposed plan has been given preliminary consideration by the Department of Planning who have identified:
· The proposal is inconsistent with State Planning Policy SPP 3 in relation to permanent residential settlement. Also SPP1 and SPP 2.6 prevent permanent settlements (i.e. 19 proposed lots where no occupancy restrictions are envisaged) in remote locations.
· The land is zoned for “Tourist” and survey strata to create the 19 lots for “residential” with no occupancy restriction would be inconsistent with the Shire of Esperance Town Planning Scheme as there is no guarantee that the lots will be used for continued “Tourist” purposes if the land is subdivided into lots as proposed - management issues the concern here. The land is not zoned for permanent residential and could only be used for “tourist purposes” for short stay and holiday accommodation. This is the broad policy frame.
· Attention will also need to be given in relation how the tourism land will be managed.
· Servicing is a major issue in this location - water, sewer and power supply. The applicant needs to provide clear evidence that it has secured water, sewer or power supply when any application is lodged. It is suggested that servicing issues be clarified with the service providers/agencies (including Department of Environment Regulation, Department of Health) before any application is lodged.
· It is suggested that a survey strata tenure arrangement be considered for the entire “Tourist “area where management statements and bylaws could be used to manage and regulate the site for tourism purposes and short stay accommodation. The Commission has already indicated that it does not support permanent residential in this remote location. Because the proposal is in a remote location it is considered that occupancy restrictions should apply to the tourism lots via management statements when subdivided. It is suggested that a draft management statement be prepared and submitted as part of any application to show the relationship between the tourist facilities.
· I have noted that ‘holiday home’ is not a permitted use in the Tourism zone and I have discussed this matter with the Shire and this is an issue that the Local Government could address via one of its Scheme Amendments currently in progress. In my view a ‘holiday home’ should rather be discretionary and dwellings should be ‘X’ uses in the Tourism zone in order for people to use houses for holiday purposes and not for permanent stay.
· Physical process study will need to be done given its close vicinity to the coast
· Hazard assessment will need to be done
· If the servicing issue could be worked out, then a survey strata proposal could be supported as an integrated development but with occupancy restrictions for short stay accommodation in relation to tourism uses.
Based on the Hon. Minister for Planning’s advice and their support for future tourism development to occur on the site and the position of the Department of Planning being firmly against the creation of any permanent residential land, it is considered inappropriate to remove the restrictive covenant from a portion of the site as it would make it possible for permanent accommodation to be established.
To facilitate the development of the site it is considered appropriate to apply the original restrictive covenant as shown on Attachment C. The remainder of Lots 1 and 5 Wharton Road should be the subject of a new restrictive covenant limiting the development of the site to tourism uses only.
Options
Option 1 - That Council advise the Department of Lands that it supports the modification of the Restrictive Covenant to the area of Lots 1 and 5 Wharton Road, Condingup as shown in Attachment C.
Option 2 - That Council advise the Department of Lands that it supports the modification of the Restrictive Covenant to the area of Lots 1 and 5 Wharton Road, Condingup as shown in Attachment C subject to a new restrictive covenant being placed on the balance of Lots 1 and 5 Wharton Road, Condingup to restrict development to tourism related development only.
Option 2 is the officer’s recommendation for the reasons outlined in this report.
Consultation
Department of Planning
Financial Implications
There are no financial implications arising from this report. There will be potential implications once development has occurred and the approval process for subdivision and development will look at these implications in detail.
Asset Management Implications
There are no asset management implications relating to this item although further investigation would need to be undertaken if more intensive development is undertaken.
Statutory Implications
Land Administration Act 1997
Policy Implications
There are no policy implications relating to this item.
Strategic Implications
Strategic Community Plan 2012-2022
Economic
3.8 – Facilitate and guide high quality and efficient building and development across the Shire/
Corporate Business Plan 2013/2014 – 2016/2017
Action 3.8.1 – Review, update and implement Local Planning Scheme and Policies
Local Planning Strategy
The Local Planning Strategy identifies the Caravan Park and the servicing constraints that are present. The Strategy does not identify any expansion of uses on the site.
Environmental Considerations
There are potentially significant environmental impacts that may result from the intensification of development that would be partially facilitated by the modification of the restrictive covenant. More detailed investigation would be required with particular emphasis on effluent disposal, water and vegetation clearing if the restrictive covenant is modified and development pursued.
|
aView. |
Restrictive Covenant - Lots 1 and 5 Wharton Road, Condingup |
|
|
bView. |
Refusal to Grant Approval - Amendment No. 12 |
|
|
cView. |
Site Plan Showing Proposed Boundary of Modified Restrictive Covenant |
|
|
That Council advise the Department of Lands that it supports the modification of the Restrictive Covenant to the area of Lots 1 and 5 Wharton Road, Condingup as shown in Attachment C subject to a new restrictive covenant being placed on the balance of Lots 1 and 5 Wharton Road, Condingup to restrict development to tourism related development only. Voting Requirement Simple Majority
|
28 January 2014 Page 24
Development Application for Oversize Outbuilding on Lot 805 (45) Barney Road, Chadwick
|
Author/s |
Peter Wilks |
Town Planner |
|
Authorisor/s |
Richard Hindley |
Director Development Services |
File Ref: P7546
Applicant
J C Millar
Location/Address
Lot 805 (45) Barney Road, Chadwick

Executive Summary
To consider an application for an oversized Outbuilding (Shed) on Lot 805 (45) Barney Road, Chadwick.
Recommendation in Brief
That Council approve Development Application 10.2013.2431.1 for development of an oversized Outbuilding (Shed) on Lot 805 (45) Barney Road, Chadwick.
Background
The application as lodged with Planning Services on 9 December 2013 by the landowners J & M Millar for a proposed Outbuilding (Shed) at Lot 805 (45) Barney Road, Chadwick. Plans and application details are attached (see Attachment A).
The subject site is 6,428 square metres in area, and is zoned Residential (R2) with a designation of Rural Residential/Rural Smallholdings under the Local Planning Strategy.
The proposed Outbuilding has a total floor area of 321 square metres, a ridge height of 5.548 metres and a wall height of 4.2 metres. Council Policy allows for a floor area of up to 100 square metres, a ridge height of 4.2 metres and a wall height of 3 metres.
In this instance, neighbour referral was undertaken to the adjacent landowner. No comments or objections were received.
Officer’s Comment
In accordance with Council’s Local Planning Policy: Outbuildings, the provisions relating to outbuildings on this property are as follows:
1.) A maximum (cumulative) floor area per lot of 100m2;
2.) A maximum ridge height of 4.2 metres; and
3.) A maximum wall height of 3 metres.
This application does not comply with the requirements of Council’s Local Planning Policy: Outbuildings, with proposed specifications as follows:
1.) A proposed (cumulative) floor area of 321m2;
2.) A proposed ridge height of 5.558 metres; and
3.) A proposed wall height of 4.2 metres.
The proposed outbuilding significantly exceeds the size provisions of Council’s Local Planning Policy: Outbuildings, however it is noted that the proposed development is located in close proximity to the existing Chadwick Industrial Areas and the proposed Barney Hill Realignment of the Coolgardie-Esperance Highway as such it would not adversely impact visual amenity of the surrounding area.
Options
Option 1 -
“That Council approve Development Application 10.2013.2431.1 for the development of an oversize Outbuilding (Shed) on Lot 805 (45) Barney Road, Chadwick, subject to the following standard conditions:
1) Development shall be carried out and fully implemented in accordance with the details indicated on the stamped approved plan(s) unless otherwise required or agreed in writing by the Shire of Esperance (Planning Services).
2) The works involved in the implementation of the development must not cause sand drift and / or dust nuisance. In the event that the Shire of Esperance is aware of, or is made aware of, the existence of a dust problem, measures such as installation of sprinklers, use of water tanks, mulching, or other land management systems as appropriate may be required to be installed or implemented to prevent or control dust nuisance, and such measures shall be installed or implemented within the time and manner directed by the Shire of Esperance (Environmental Health Services).
3) All stormwater and drainage run off from all roofed and impervious areas is to be retained on-site to the satisfaction of the Shire of Esperance (Building Services).
4) During construction stage, adjoining lots are not to be disturbed without the prior written consent of the affected owner(s).
5) The approved outbuilding shall be used for purposes incidental and ancillary to the enjoyment of the land only, and shall not be used for human habitation, commercial or industrial uses.
AND the following advice notes:
1. It is the responsibility of the applicant to ensure that building setbacks correspond with the legal description of the land. This may necessitate re-surveying and re-pegging the site. The Shire of Esperance will take no responsibility for incorrectly located buildings.
2. It is the responsibility of the developer to search the title of the property to ascertain the presence of any restrictive covenants and / or easements that may apply.
3. This is not a Building Permit. An application for a building permit is required to be submitted and approved by the Shire of Esperance (Building Services) prior to any works commencing on-site.”
Option 2 - Officer Recommendation
“That Council refuse Development Application 10.2013.2431.1 for the development of an oversize Outbuilding (Shed) on Lot 805 (45) Barney Road, Chadwick due to non-compliance with the provisions of Council’s Local Planning Policy: Outbuildings.”
Consultation
The application was referred to the adjoining landowner for comment as per the requirements of Local Planning Scheme No. 23. No comments or objections were received.
Financial Implications
Nil
Asset Management Implications
Nil
Statutory Implications
The statutory implications associated with this item are:
1.) Planning and Development Act 2005;
2.) Local Planning Scheme No. 23; and
3.) Local Planning Policy: Outbuildings
Policy Implications
The policy implications arising from this report are:
1.) Local Planning Policy: Outbuildings.
Strategic Implications
Strategic Community Plan 2012-2022
Economic
3.8 Facilitate and guide high quality and efficient building and development across the Shire.
Environmental Considerations
Nil
|
aView. |
Application and Plans |
|
|
That Council approve Development Application 10.2013.2431.1 for the development of an oversize Outbuilding (Shed) on Lot 805 (45) Barney Road, Chadwick, subject to the following standard conditions:
1. Development shall be carried out and fully implemented in accordance with the details indicated on the stamped approved plan(s) unless otherwise required or agreed in writing by the Shire of Esperance (Planning Services). 2. The works involved in the implementation of the development must not cause sand drift and / or dust nuisance. In the event that the Shire of Esperance is aware of, or is made aware of, the existence of a dust problem, measures such as installation of sprinklers, use of water tanks, mulching, or other land management systems as appropriate may be required to be installed or implemented to prevent or control dust nuisance, and such measures shall be installed or implemented within the time and manner directed by the Shire of Esperance (Environmental Health Services). 3. All stormwater and drainage run off from all roofed and impervious areas is to be retained on-site to the satisfaction of the Shire of Esperance (Building Services). 4. During construction stage, adjoining lots are not to be disturbed without the prior written consent of the affected owner(s). 5. The approved outbuilding shall be used for purposes incidental and ancillary to the enjoyment of the land only, and shall not be used for human habitation, commercial or industrial uses.
AND the following advice notes: 1. It is the responsibility of the applicant to ensure that building setbacks correspond with the legal description of the land. This may necessitate re-surveying and re-pegging the site. The Shire of Esperance will take no responsibility for incorrectly located buildings. 2. It is the responsibility of the developer to search the title of the property to ascertain the presence of any restrictive covenants and / or easements that may apply. 3. This is not a Building Permit. An application for a building permit is required to be submitted and approved by the Shire of Esperance (Building Services) prior to any works commencing on-site.” Voting Requirement Simple Majority
|
28 January 2014 Page 31
Proposed Road Dedication - Lot 123 Windich Street, Esperance
|
Author/s |
Peter Wilks |
Town Planner |
|
Authorisor/s |
Richard Hindley |
Director Development Services |
File Ref: F13/991
Applicant
Shire of Esperance (Planning Services)
Location/Address
Lot 123 Windich Street, Esperance

Executive Summary
For Council to consider the dedication of Lot 123 Windich Street for the purposes of a Road Reserve.
Recommendation in Brief
That Council requests the Minister of Lands to dedicate Lot 123 Windich Street for the purposes of a Road Reserve.
Background
At the Ordinary Council Meeting of July 2008, Council resolved (O0708-1404):
That the Council agree to the commencement of the road dedication process for a portion of the Right of Way known as Lot 123 Windich Street under Section 56 of the Land Administration Act 1997.
Following the statutory advertising period the item was returned to Council on 28 April 2009 where Council resolved (O0409-1588):
That Council request the Minister for Lands to dedicated a portion of the Right of Way known as Lot 123 Windich Street as shown on Appendix K under Section 56(1) of the Land Administration Act 1997.
As part of the closure process for the Right of Way, the owners of Lot 203 Windich Street were granted permission by the State to purchase the remaining portion of Lot 123 Windich Street and amalgamate it into their land to allow for legal access to Lot 203. The owners of Lot 203 Windich Street have since been unable or unwilling to complete the purchase of a portion of Lot 123 Windich Street prior to the expiration of the offer, as such the item is returned to Council to determine the dedication of the whole of Lot 123 as Road.
Shire Records indicate Lot 123 D 60688 Windich Street is owned by Department of Planning and Infrastructure – State Land Services.
At the Ordinary Council Meeting of October 2013, Council resolved (O1013-005):
That Council commence the road dedication process for Lot 123 D 60688 Windich Street, Esperance in accordance with Section 56 of the Land Administration Act 1997 and make a request to the Minister to dedicate the parcel as a Public Road.
The road dedication was advertised for a period of 35 days finishing on 10 January 2014.
Officer’s Comment
From a planning and engineering perspective, the dedication of the road is appropriate as it results in legal access being established to Lot 203 Windich Street, and allows for the road pavement comprising Windich Street to be located wholly in the road reserve.
Five (5) submissions were received (see Attachment A for Schedule of Submissions), all five were from government departments and servicing agencies indicating no comment or no objection.
Consultation
The road dedication process operates under Section 56 of the Land Administration Act 1997. This process provides for a 35 day referral period where all affected landowners and servicing agencies are to be consulted (including a notice published in the local newspaper). Advertising closed on 10 January 2014 with five submissions being received by servicing agencies and government departments.
Financial Implications
All future costs associated with the road dedication process will be required to be met by the Shire of Esperance.
Asset Management Implications
Nil
Statutory Implications
Local Government Act 1995
Land Administration Act 1997
Land Administration Regulations 1998
Policy Implications
Nil
Strategic Implications
Strategic Community Plan 2012 – 2022
Economic
3.2 Ensure essential services and infrastructure are aligned to community needs now and in the future
3.3 Deliver and advocate for a diverse and safe transport system which is efficient and meets the needs of all users
Environmental Considerations
Nil
|
aView. |
Schedule of Submissions |
|
|
That Council: 1. Request the Minister of Lands to dedicate Lot 123 D 60688 Windich Street, Esperance as road reserve under Section 56 of the Land Administration Act 1997. 2. Advise the Minister of Lands that in accordance with Section 56 (4) of the Land Administration Act 1997 that the Shire recognises that it is liable to indemnify the Minister against any claim for compensation in an amount equal to the amount of all costs and expenses reasonably incurred by the Minister in considering and granting the request. Voting Requirement Simple Majority
|
28 January 2014 Page 36
Proposed Road Realignment of Murray Road through Reserve 24486 and Lots 15 and 471 Murray Road
|
Author/s |
Peter Wilks |
Town Planner |
|
Authorisor/s |
Richard Hindley |
Director Development Services |
File Ref: F13/898
Applicant
Shire of Esperance
Location/Address

Executive Summary
For Council to consider the realignment of Murray Road through Shire of Esperance Reserve 24486 and Lots 15 and 471 Murray Road.
Recommendation in Brief
That Council requests the Minister of Lands dedicate the land pertaining to the realignment of Murray Road through Shire of Esperance Reserve 24486 and Lots 15 and 471 Murray Road.
Background
At the Ordinary Council Meeting of August 2013, Council resolved (O0813-032):
That Council commence the road dedication process for the realignment of Murray Road under Section 56 of the Land Administration Act 1997.
The realignment of Murray Road cuts through Shire Reserve 24486 and Lots 15 and 471 Murray Road.

The Shire of Esperance will indemnify the Minister against all costs and charges (In accordance with the Land Administration Act 1997) that relate to the realignment of Murray Road.
Officer’s Comment
From a planning and engineering perspective, the realignment of the road reserve is appropriate as it results in the road pavement being located wholly within the road reserve.
Six (6) submissions were received (see Attachment A for Schedule of Submissions); all six were from government departments and servicing agencies indicating no comment or no objection.
Consultation
The road dedication process operates under Section 56 of the Land Administration Act 1997. This process provides for a 35 day referral period where all affected landowners and servicing agencies are to be consulted (including a notice published in the local newspaper). Advertising closed on 15 November 2013 with six submissions being received by servicing agencies and government departments.
Financial Implications
All future costs associated with the road realignment process will be required to be met by the Shire of Esperance.
Asset Management Implications
Nil
Statutory Implications
Local Government Act 1995
Land Administration Act 1997
Land Administration Regulations 1998
Policy Implications
Nil
Strategic Implications
Strategic Community Plan 2012 – 2022
Economic
3.2 Ensure essential services and infrastructure are aligned to community needs now and in the future
3.3 Deliver and advocate for a diverse and safe transport system which is efficient and meets the needs of all users
Environmental Considerations
Nil
|
aView. |
Schedule of Submissions |
|
|
That Council: 1. Request the Minister of Lands to dedicate the indicated portion of Reserve 24486 and Lots 15 and 471 Murray Road as road reserve under Section 56 of the Land Administration Act 1997. 2. Advise the Minister of Lands that in accordance with Section 56 (4) of the Land Administration Act 1997 that the Shire recognises that it is liable to indemnify the Minister against any claim for compensation in an amount equal to the amount of all costs and expenses reasonably incurred by the Minister in considering and granting the request. Voting Requirement Simple Majority
|
28 January 2014 Page 41
Esperance Goldfields Surf Lifesaving Club Building - Update on Negotiations
|
Author/s |
Richard Hindley |
Director Development Services |
|
Authorisor/s |
Richard Hindley |
Director Development Services |
File Ref: F13/938
Applicant
Shire of Esperance
Location/Address
Lot 2012 on Plan 192574, Reserve 41860, Twilight Beach Road, Dalyup

Executive Summary
For Council to defer consideration of the Lease of Reserve 41860 to the Esperance Goldfields Surf Life Saving Club (Inc) until such time as agreement is reached for the resolution of non compliant issues with the current building.
Recommendation in Brief
That Council lay the matter of the Lease of Reserve 41860 to the Esperance Goldfields Surf Life Saving Club (Inc) on the table until such time as agreement is reached for the resolution of non compliant issues with the current building.
Background
The Council considered the matter of the lease of Reserve 41860 to the Esperance Goldfields Surf Life Saving Club (Inc) where it resolved (O1213-005):
That the matter lay on the table for one month until discussion between the Shire and the Esperance Lifesaving Club take place to resolve any non compliant issues identified with the current building.
This report has been prepared to outline what progress has been achieved in addressing the issues of non-compliance.
Officer’s Comment
An initial site meeting was held which resulted in a schedule of outstanding works being identified (Attachment A). Preliminary discussion were held regarding how to bring the building into compliance however due to the interruption that occurred over the Christmas and New Years period at this stage these negotiations are not yet complete.
One of the issues that is still required to be determined is what works are undertaken before the new building is built as one of the primary outcomes of the new building will be the resolution of outstanding development requirements.
Consultation
An onsite meeting between the Chief Executive Officer, Director Development Services, Manager Building Services, Manager Health and Environment and Ian Saunders – President Esperance Goldfields Surf Life Saving Club (Inc) occurred on 23 December 2013.
Financial Implications
Nil
Asset Management Implications
Nil
Statutory Implications
Nil
Policy Implications
Nil
Strategic Implications
Strategic Community Plan 2012-2022
Economic
3.5 Maintain the Shire’s robust asset management practices and maintenance program
Civic Leadership
4.2 Maintain a clear, transparent and ethical decision making process
Environmental Considerations
Nil
|
a. |
Schedule of Outstanding Works - Esperance Goldfields Surf Life Saving Clubrooms - Confidential |
|
|
That Council lay the matter of the Lease of Reserve 41860 to the Esperance Goldfields Surf Life Saving Club (Inc) on the table until such time as agreement is reached for the resolution of non compliant issues with the current building. Voting Requirement Simple Majority
|
28 January 2014 Page 45
12.3 Corporate Services
Rates Concession - Myrup Fly-in Estate - Lot 11
|
Author/s |
Tamsen Kirby |
Rates Officer |
|
Authorisor/s |
Katie Kelly |
Senior Rates Officer |
|
|
Shane Burge |
Director Corporate Services |
File Ref: 0
Applicant
Mr. Robert Rollond
Location/Address
Lot 11 Survey Strata Plan 60076

Executive Summary
For Council to consider a request from Mr. Robert Rollond, owner of Lot 11 S/P 60076 to grant a 50% concession on his rates at Myrup Fly-in Estate.
Recommendation in Brief
That the Council grant a rate concession on lot 11, following the granting of a rate concession for lots 1-10, 12-14 and 16 of the Myrup Fly-in Estate Survey Strata Plan 60076.
Background
On the 28th May 2013 Council granted a rate concession for lots 1-10, 12-14 and 16. Council Minutes 28 May 2013;
Council Resolution;
O0513-032
That Council grant a rate concession of 50% for the following eight lots (5,6,7,8,9,10,12,13) of the Myrup Fly-in Estate Survey Strata Plan 60076 for the period that each lot are valued under $15,000 by the Valuer General or until such time as individual development applications are approved by the Shire.
CARRIED
F6 – A1
The Myrup Fly-in Estate subdivision was created on 1 November 2012 consisting of 43 lots. Upon the creation each lot was subject to the minimum rate charge of $855.00. This caused inequity between the lots; smaller lots such as lots 1-8, of 260m2 with a UV valuation of $9,000.00 were being charged the same as larger lots such as lot 26 of 3620m2 with a UV valuation of $85,000.00. Chairman of the Owners Council, Mr Noel Willing applied to Council for a rate concession which was approved as above.
When Mr Noel Willing originally applied for a reduction he had lot 11 incorrectly listed with a UV value of $20,000.00, therefore it was not considered for the rate concession.
Mr Rollond purchased lot 11 on 28 June 2013 for $20,000.00. This property has the UV value of $14,000.00 as per the Valuer General. Lot 11 therefore meets the criteria set by Council for a 50% reduction of rates as the property is valued under $15,000.00 and is currently undeveloped.
Officer’s Comment
Due to the small size of the lots, the valuation of each lot is low in comparison to other UV properties within the shire. The calculation of the rates for each lot has resulted in each lot falling under the minimum rate and therefore being charged the full minimum rate.
Financial Implications
If Council was to grant the 50% rate concession on Lot 11, Myrup Fly-in Estate Survey Strata Plan 60076 the implications arising from this report would be a reduction of $427.50 in rates revenue for 2013/2014.
Asset Management Implications
Nil
Statutory Implications
Local Government Act 1995 Section 6.47
Policy Implications
Nil
Strategic Implications
Strategic Community Plan 2012-2022
Civic Leadership
4.5 Be innovative in the management of Shire operations, staff and resources to create a resilient and financially stable shire.
Environmental Considerations
Nil
|
aView. |
Survey Strata Plan 60076 |
|
|
That Council grant the request of a 50% rate concession of on Lot 11, Myrup Fly-in Estate Survey Strata Plan 60076 for the period that the lot is valued under $15,000.00 by the Valuer General or until such time as a development application is approved by the shire. Voting Requirement Simple Majority
|
28 January 2014 Page 49
Tender 1113 - Shark Lake Agricultural Land Lease
|
Author/s |
Jennifer Parry |
Manager Administration Services |
|
Authorisor/s |
Shane Burge |
Director Corporate Services |
File Ref: F13/1004
Applicant
Corporate Services
Location/Address
Lot/s 20, 21, 9500, 122, 123, 124, 125, 47, 26, 127, 128, 129, 130, 131, 132, 33, 34, 35, 36, 37, 38, 39, 40, 41, 42, 43, 44, 45, 46 on deposited plan 64784 in Shark Lake Industrial Park, Shark Lake Road, Esperance.
101.6 hectares (251.07 acres).

Executive Summary
For Council to consider awarding Tender 1113 to lease Shire owned land at Shark Lake Industrial Park for the purpose of agriculture, subject to the land still being available for sale as industrial land use.
Recommendation in Brief
That Council award Tender 1113 Shark Lake Agricultural Land Lease to Mr. J Knox for a 2 year term with 5 x 1 year options to extend (options at Council’s discretion).
Background
Shark Lake Industrial Park has been established since 2009; since completion of the project, no lots have yet been sold.
An informal land use agreement has been in place for several years between the Shire and Mr K Scott, owner of a neighboring property, allowing the land to be used for grazing and cropping hay as a method of land maintenance and fire fuel reduction.
Submissions were called for Tender 1113 Shark Lake Agricultural Land Lease with a closing time of 2.00 pm Monday 16 December 2013. The proposed lease document is attached.
Officer’s Comment
Two (2) conforming tenders were received.
The tenders were assessed on the information provided being specific compliance and qualitative criteria as well as additional information offered by both tenderers. This information is provided in a confidential attachment.
The only scoring system used was a weighting of 100% for tendered price, for that reason the highest amount offered by Mr Knox is the Officer’s Recommendation.
Consultation
Shire Executive Management Group
Elders Real Estate
Department of Agriculture
McLeods Barristers and Solicitors
Financial Implications
The financial reward gained from leasing the land is minimal, but additional benefit is achieved by having the land managed for both weed and fire mitigation.
Asset Management Implications
The land being a Shire asset can benefit by being managed to current agricultural landcare standards.
Statutory Implications
Local Government Act 1995 - Section 3.58 Disposing of Property
Policy Implications
The current Shire Policies for Property Leasing are inappropriate to this particular land lease necessitating additional external consultation.
Strategic Implications
Strategic Community Plan 2012-2022
Strategy 4.5 Be innovative in the management of Shire operations, services, staff and resources to create a resilient and financially stable Shire
Corporate Business Plan 2013/2014 – 2016/2017
Action 4.5.12 Manage Shire leases and insurances
Environmental Considerations
Conversations with both tenderers throughout this tender process indicated that the environment and care of the land was of primary consideration in both submissions.
|
a. |
Tender 1113 Assessment - Confidential |
|
|
b. |
Shark Lake Agricultural Land Lease Template - Confidential |
|
|
That Council award Tender 1113 Shark Lake Agricultural Land Lease to Mr. J Knox for a 2 year term with 5 x 1 year options to extend (options at Council’s discretion).
Voting Requirement Simple Majority
|
28 January 2014 Page 52
Lease - Old Matron's Quarters - Museum Village
|
Author/s |
Jennifer Parry |
Manager Administration Services |
|
Authorisor/s |
Shane Burge |
Director Corporate Services |
File Ref: F13/1007
Applicants
Jacqui Rogers, Helen Anderson & John Totterdell
Location/Address
Old Matron’s Quarters
Museum Village – 52 & 54 (Lots 57 & 58) Dempster Street Esperance
Executive Summary
For Council to consider entering into a lease with one of three applicants for the Old Matron’s Quarters at Museum Village.
Recommendation in Brief
That Council agrees to lease the Old Matron’s Quarter’s at 52 & 54 (Lots 57 & 58) Dempster Street Esperance, to John Totterdell for the purpose of a marine themed gallery along with retailing of local artwork and photography subject to certain conditions.
Background
Three applications to lease the Old Matron’s Quarters were received in the final weeks of 2013. All applicants have inspected the building and believe that they could adapt the building for their individual proposed use.
All applicants would prefer to lease the property until the end of 2015, but it was explained to each that an application would need to be lodged with the State Administrative Tribunal (SAT) to provide an order overriding the Commercial Tenancy (Retail Shops) Agreements Act 1985 (CTA). The CTA creates a basic right for retail tenants to be granted an option to extend the lease to a minimum lease period of 5 years in relation to leases of more than 6 months. Due to the decision of Council to have the Leases in Museum Village expire on 31 December 2015 (22 months away), we would be unable to fulfill the obligation of providing a 5 year tenancy and as such would only able to offer a lease period of 1 day less than 6 months without an Order from SAT. All proponents indicated their willingness to apply.
Mr. Totterdell applied immediately following his viewing of the property and SAT have heard the matter and made an Order in favour of Mr Totterdell’s request; henceforth allowing a lease period of greater than 6 months but less than 5 years.
Officer’s Comment
Council currently have a Policy, ‘Corp 003: Museum Park Buildings Leasing Arrangements’ which states that “In relation to development at ‘The Museum Park Period Village’ the Council will promote the area for arts, crafts and goods inspired and produced both locally and regionally, in an environment encouraging the interests of tourism”.
Applications from both Helen Anderson and John Totterdell fit the requisite of the Policy with their proposed businesses being tourism orientated.
As Mr Totterdell not only fulfills the requirements of Council’s Policy, but has already submitted his application to SAT and received an order in his favour, it is recommended that Council agrees to enter into a lease agreement with Mr Totterdell with an expiry of 31 December 2015.
Consultation
State Administrative Tribunal, Department of the Attorney General
Herron Todd White, Registered Valuer
Development Services
Financial Implications
The Local Government Act 1995 requires that the rent be ascertained from a market valuation carried out not more than 6 months prior to the proposed disposition of the property. The most recent valuation on this property (11/9/2013) appraises the rent at $65.00 m2 being $6,207.50 pa ex GST.
Asset Management Implications
It is anticipated that the asset management implications would be negligible albeit that the building is very old; the Shire (Lessor) is responsible for structural maintenance of this property and the Lessee responsible for minor maintenance.
Statutory Implications
Local Government Act 1995- Section 3.58 Disposing of Property
Commercial Tenancy (Retail Shops) Agreement Act 1985
Policy Implications
This item relates to Council Policy CORP 004 for Building and Property Leases.
The Building and Property Lease Policy determines property classifications that can be applied to all Council’s property providing for consistency in leased documentation and equity in terms and conditions within the various property classifications. This policy also aims to clarify the role and responsibilities between the Lessor (Shire) and Lessee on matters relating to cleaning, internal and external property maintenance.
The applicable classification for this item is ‘Commercial Premises – Community’
Strategic Implications
Strategic Community Plan 2012-2022
4.5 Be innovative in the management of Shire operations, services, staff and resources to create a resilient and financially stable Shire
1.2 Create a vibrant built environment that is accessible and inclusive and reflects the Shire’s identity and local heritage
3.5 Maintain the Shire’s robust asset management practices and maintenance programs
Corporate Business Plan
4.5.12 Manage Shire leases and insurances
Environmental Considerations
Nil
|
aView. |
Application to Lease Old Matron's Quarters - Jacqui Rogers |
|
|
bView. |
Application to Lease Old Matron's Quarters - Helen Anderson |
|
|
cView. |
Application to Lease Old Matron's Quarters - John Totterdell |
|
|
That Council agrees to lease the Old Matron’s Quarter’s at 52 & 54 (Lots 57 & 58) Dempster Street Esperance, to John Totterdell for the purpose of a marine themed gallery along with retailing of local artwork and photography subject to the following; a) The term of the lease be from a negotiated commencement date, expiring 31 December 2015; b) The lease rental to be determined from commercial valuation; c) The lease area to be clearly identified in an attachment to the lease document; d) The disposal of the property be advertised in accordance with the Local Government Act s.3.58(4). Voting Requirement Simple Majority
|
28 January 2014 Page 58
PO
Box 1029
Esperance
WA 6450 PH: 0419 949939 ABN: 59 946 529 101 www.mirg.org.au
Marine Ecology and
Oceanography
Marine Mammal Research
Documentary and Education
________________________________________________________________________________________
To: Jennifer Parry
Manager Administration Services
Shire of Esperance
PO Box 507 Esperance WA 6450
Ph: 08 90710614 M: 0438 094288
jennifer.parry@esperance.wa.gov.au
Date: 19 December 2013
Attn: Jennifer Parry
RE: Request for a lease on the ‘Old Matron’s Quarters’ (Lots 57 & 58 on DP 5742)
Further to my initial request seeking information in regard to the availability of the ‘Old Matron’s Quarters’ in Museum village, I am writing to formally request a lease on these premises.
I understand the position of the Shire of Esperance (Council) in regard to the proposed redevelopment of the whole Museum Village area and am willing to enter a lease agreement that will expire no later than 31 December 2015. As a consequence and as advised, I have submitted an application with the State Administrative Tribunal (SAT) under the Commercial Tenancy (Retail Shops) Agreements Act 1985, s 13(7b) Option of Renewal does not arise – please see a copy attached. Advice from the SAT office has indicated this will be ruled on this week or next.
In the interim, should Council deem appropriate, I would also be willing to enter into a 6-month agreement which could be extended to the 31 December 2015 once the SAT ruling is received.
My particular interest in this site is to in part, relocate our current gallery and to establish a more tourist based specific marine-themed gallery, highlighting our much treasured Recherche Archipelago. For over 10 years now I have been primarily involved in science based marine research and marine educational documentary production through the Marine Information and Research Group (MIRG) a non-profit organization based here in WA. Biologist Hans Kemps and myself (the two Trustees of MIRG) work in this field with communities, WA universities and government departments.
As with the non–profit nature of our organization we intend to offer both visitors and locals an interesting and at times fascinating look into the marine world of the south coast – at the same time, also the opportunity to purchase something uniquely Esperance. This of-course will allow us to showcase some of our marine work and also artwork and photography from a select group of talented locals.
Should the Council agree to lease these premises to us I am prepared to discuss the option of a lease agreement between the Shire of Esperance and MIRG or Shire and myself, John Totterdell.
Should we be successful we are considering a new name for this venture - ‘Recherche Gallery’.
Best regards
![]() |
John Totterdell
jatotte@mirg.org.au
Ph: 0419 949939
28 January 2014 Page 60
Lease - Dalyup Community Hall
|
Author/s |
Jennifer Parry |
Manager Administration Services |
|
Authorisor/s |
Shane Burge |
Director Corporate Services |
File Ref: F12/3911
Applicant
Corporate Services
Location/Address
Lots 24, 25, 19 & 20 South Coast Highway Dalyup, being Reserve 26310 (24,462.35 m2)

Executive Summary
For Council to consider leasing the above mentioned property known as Dalyup Community Hall to Dalyup Progress Association (Inc).
Recommendation in Brief
That Council agrees to lease for 21 years, Lots 24, 25, 19 & 20 South Coast Highway Dalyup, being Reserve 26310, to Dalyup Progress Association subject to certain conditions.
Background
In 2004 a Licence Agreement was created between the Shire and Dalyup Progress Association for 5 years with a further period of 5 years; due to expire on 31 March 2014. Consultation with the Department of Lands indicates that a lease can be entered into for a period of 21 years (as per the current Management Order) but only at the expiry of the current Licence Agreement term.
Mandatory public building inspections by the Shire’s Health & Environment Officers indicate that the property appears to be unkempt with several Work Orders issued still outstanding. The current condition is due most likely to a lack of use and maintenance. It is anticipated that both the use and maintenance of the property will be improved as DPA have requested that a small area of land close to the Hall be permitted to be sub-let to Dalyup Bush Fire Brigade to install a shed for their equipment, it is expected that more use of the Dalyup Hall by members of the community will ensue.
For the sub-lease to be able to proceed, Council will be required to request a change of purpose for the Management Order from ‘Recreation’ as it currently stands to ‘Recreation and Emergency Services’. Notwithstanding, DPA will be required to provide the Shire with details of how they plan to resolve the outstanding work orders ensuring that the building is compliant for public use.
Officer’s Comment
It is recommended that Council resolve to lease Reserve 26310 to Dalyup Progress Association including the power to sub-let a portion of the property to Dalyup Bush Fire Brigade.
Many Community Halls tend to be deficient in the area of care and maintenance, generally due to the lack of use. It would appear to be beneficial to have another community group involved, reinvigorating the use of the property.
Consultation
Dalyup Progress Association
Dalyup Bush Fire Brigade
Department of Lands
Development Services
Asset Management Department
Financial Implications
A Lease Preparation Fee of $110.00 as specified in the Council Adopted 2013-2014 Fees & Charges will be applied along with the cost of any legal fees charged by McLeod Barristers & Solicitors for Lease advice sought.
Asset Management Implications
Current Asset Management database indicates that the building is generally in good to average condition, of brick and iron construction with a floor area of 282m2. It lists some gyprock and suspended ceiling panels as being in poor condition. At last inspection power was off, gas bottles removed, pavers green and slippery.
Statutory Implications
Section 3.58 of the Local Government Act 1995 deals with the disposal of property and methods that can be used for its disposal. Local Government Functions and General Regulations 1996 exempt this disposal from Section 3.58 of the Local Government Act 1995 as the land is being disposed of to a body which are of either a charitable, benevolent, religious, cultural, educational, recreational, sporting or other like nature; and the members of which are not entitled or permitted to receive any pecuniary profit from the body’s transactions.
Policy Implications
This item relates to the following two Council Policies;
Corp 004: Building And Property Leases with the classification of Halls and Community Centres; and
Corp 012 Reserve Funding For Community Halls
Strategic Implications
Strategic Community Plan 2012-2022
4.5 Be innovative in the management of Shire operations, services, staff and resources to create a resilient and financially stable Shire
1.4 Encourage and support volunteers and community groups
3.5 Maintain the Shire’s robust asset management practices and maintenance programs
Corporate Business Plan
4.5.12 Manage Shire leases and insurances
Environmental Considerations
N/A
Nil
|
That Council: 1. Request the Minister of Lands change the Management Order for Reserve 26310 so that the purpose of use is changed from ‘Recreation’ to ‘Recreation’ and ‘Emergency Services’; and 2. Agrees to lease to Dalyup Progress Association, Lots 24, 25, 19 & 20 South Coast Highway Dalyup, being Reserve 26310, subject to: a) Dalyup Progress Association providing a detailed plan to resolve the current outstanding work orders issued by Shire’s Health & Environment Department; b) The term of the lease to be 21 years; c) The lease rental to be $1.00 as and when demanded; d) The charge of a $110.00 Lease Preparation Fee along with the reimbursement at cost to Council of any Legal Fees pertaining to this Lease; e) The lease area is to be 2.45 ha, Lots 24, 25, 19 & 20 South Coast Hwy Dalyup as defined in the lease and displayed clearly in the lease document; f) That all lease terms and conditions be as the Shire Standard Lease for Sporting and Community Groups; g) That financial statements are provided to Council each year upon request, and h) That Dalyup Progress Association is permitted to sub-let a portion of Reserve 26310 to Dalyup Bush Fire Brigade, subject to approval from the Minister of Lands. Voting Requirement Simple Majority
|
28 January 2014 Page 63
Financial Services Report - December 2013
|
Author/s |
Beth O'Callaghan |
Manager Financial Services |
|
Authorisor/s |
Shane Burge |
Director Corporate Services |
File Ref: F13/639
|
aView. |
Monthly Financial Management Report |
|
|
That the report entitled Monthly Financial Management Report (incorporating the Statement of Financial Activity and the Accounts for Payment) for the month of December as attached be received. Voting Requirement Simple Majority
|
28 January 2014 Page 122
12.5 Executive Services
Information Bulletin
|
Author/s |
Helen Hall |
Executive Assistant |
|
Authorisor/s |
Matthew Scott |
Chief Executive Officer |
File Ref: 0
Applicant
Executive Services
|
aView. |
Information Bulletin January 2014 |
|
|
bView. |
Annual Electors Meeting - 18 December 2013 |
|
|
That the Councillor’s Information Bulletin for January 2014 be received. Voting Requirement Simple Majority
|
28 January 2014 Page 123

Shire of Esperance
COUNCILLOR’S INFORMATION BULLETIN
ORDINARY COUNCIL MEETING
28 JANUARY 2014
DISCLAIMER
No responsibility whatsoever is implied or accepted by the Shire of Esperance for any act, omission or statement or intimation occurring during Council or Committee meetings. The Shire of Esperance disclaims any liability for any loss whatsoever and howsoever caused arising out of reliance by any person or legal entity on any such act, omission or statement or intimation occurring during Council or Committee meetings. Any person or legal entity who acts or fails to act in reliance upon any statement, act or omission made in a Council or Committee meeting does so at that person’s or legal entity’s own risk.
In particular and without derogating in any way from the broad disclaimer above, in any discussion regarding any planning application or application for a licence, any statement or intimation of approval made by a member or officer of the Shire of Esperance during the course of any meeting is not intended to be and is not to be taken as notice of approval from the Shire of Esperance. The Shire of Esperance warns that anyone who has any application lodged with the Shire of Esperance must obtain and should only rely on written confirmation of the outcome of the application, and any conditions attaching to the decision made by the Shire of Esperance in respect of the application.
ETHICAL DECISION MAKING AND CONFLICTS OF INTEREST
Council is committed to a code of conduct and all decisions are based on an honest assessment of the issue, ethical decision-making and personal integrity. Councillors and staff adhere to the statutory requirements to declare financial, proximity and impartiality interests and once declared follow the legislation as required.
SHIRE OF ESPERANCE
Index
SHIRE OF ESPERANCE
1. REPORTS
1.1 ENGINEERING SERVICES
1.1.1 Plant Maintenance Report
1.1.2 Rural Road Works
1.1.3 Town Works
1.1.4 Parks & Gardens
1.1.5 Grading Report
1.2 DEVELOPMENT SERVICES
1.2.1 Building Services
1.2.2 Planning Services
1.2.3 Subdivision Applications Recommended for Approval
1.2.4 Subdivision Decisions – Western Australian Planning Commission
1.2.5 State Administrative Tribunal Proceedings Update
1.2.6 Health Services
1.3 EXECUTIVE SERVICES
1.3.1 Human Resources
1.3.2 Occupational Safety and Health Report for September 2012
1.4 COMMUNITY SERVICES
1.4.1 Ranger Services
1.4.2 Tourism and Events Report
1.4.3 Library Services
1.4.4 BOILC
1.5 CORPORATE SERVICES
2. INFORMATION CORRESPONDENCE
3. MINUTES AND NOTES OF MEETINGS HELD DURING PERIOD
4. PAPERS
1. REPORTS
1.1 ENGINEERING SERVICES
1.1.1 Plant Maintenance Foreman’s Report
|
Plant Number |
Asset |
Description |
|
Work Completed |
||
|
L 54 |
Loader |
Replace steering pins and bushes, reshim bucket pins |
|
|
Jetty |
Fabricate hand rail brackets |
|
G 41 |
Grader |
Check fault light, repair steering sensor wiring |
|
LV 552 |
Wagon |
Replace spark plugs |
|
TR 46 |
3" water pump |
Make up new suction hose |
|
L48 |
Backhoe |
Repair oil leak under cab |
|
|
Workshop |
Organize oil bunding area for new IBC tanks |
|
|
Airport slasher |
Replace cutting edges, check over |
|
MR 16 |
Roller |
Clean and check oil leak on final drives |
|
|
Chainsaw |
Check over, sharpen chain |
|
G 40 |
Grader |
Check and repair wires on starting system |
|
|
Road line marker |
Clean and replace hoses, adjust cables as needed |
|
TR 43 |
skid steer trailer |
Adjust brakes, check lights |
|
TR 71 |
Trailer |
High pressure clean |
|
G 38 |
Grader |
Remove Tow hitch, phone, UHF and clean for trade |
|
T 108 |
8 Wheeler |
Check and repair seat operation |
|
WT 6 |
Water tank |
Check and replace 3" air water valve |
|
TC 34 |
Mower |
Repair air cleaner mounting bracket |
|
L 47 |
Backhoe |
Clean and strip for trade |
|
L 51 |
Compactor |
check and adjust trunion bolts |
|
L48 |
Backhoe |
Check and adjust parking brake operation |
|
T 100 |
Truck |
Repair rear tail lights |
|
L 57 |
Loader |
Relocate bucket hydraulic fittings |
|
C 27 |
Caravan |
Check leaf springs, broken bolt |
|
L 47 |
Backhoe |
Replace alterator and air con belts |
|
G 41 |
Grader |
Check and repair air compressor fittings |
|
MR 12 |
Roller |
Clean and strip for trade |
|
TR 45 |
Fuel tanker |
Fit new petrol fuel pump and hose |
|
L 49 |
Skid steer |
Clean and strip for trade |
|
G 41 |
Grader |
Replace fuel hose on tank |
|
D 11 |
Dozer |
Check seat operation and adjust |
|
T 100 |
Truck |
Straighten tail |
|
L 58 |
Skid steer |
Fit cutting edge and 4 x tyres and rims |
|
G 42 |
Grader |
Switch over slope meter operating switches |
|
L 59 |
Backhoe |
Hard face bucket |
|
L 60 |
Backhoe |
Hard face bucket |
|
|
Trencher |
Adjust and grease, check over |
|
T 108 |
Semi truck |
Check fuel leak on tank |
|
G 41 |
Grader |
Replace 24 to 12 volt inverter |
|
LV 559 |
Wagon |
Replace rear 2 x seats |
|
D 11 |
Dozer |
Clean out belly plates |
|
G 44 |
Grader |
Fit rock guard to circle A frame |
|
LV 538 |
Wagon |
replace rear wheel stud |
|
G 42 |
Grader |
Fabricate tow hitch |
|
MR 17 |
Roller |
Fill tank with ballast |
|
L 51 |
Compactor |
Check and repair coolant leak |
|
LV 572 |
Ute |
Replace alterator adjustment pulley |
|
T 102 |
8 Wheeler |
Weld and brace hoist frame |
|
T 101 |
Truck |
Replace oil level switch on engine |
|
LV 530 |
Ute |
Revert anchor points to rear of well back |
|
T 100 |
Truck |
Check hoist operation |
|
FR 8 |
Roller |
Weld rotating light bar |
|
LV 564 |
Bus |
Check and rewire trailer plug |
|
|
|
|
|
Light vehicles |
17 |
Service |
|
Heavy vehicles |
17 |
Service |
|
|
|
|
|
|
||
|
T 100 |
Truck |
Order and replace PTO pump |
|
T 106 |
Truck |
Repairs to cab (Insurance) |
|
T 102 |
8 Wheeler |
Check starting system |
|
|
Pre coater |
Bracket on frame work need welding |
|
VR 12 |
Roller |
Air con not working |
|
TC 25 |
Tractor |
Air con not working |
|
TC 30 |
Tractor |
Check alterator operation |
|
Work Scheduled |
||
|
C 27 |
Caravan |
Replace leaf spring bolts and hangers |
|
TT5 |
Semi Tipper |
Replace brake shoes / drums and tail gate booster |
|
New Plant |
||
|
L 58 |
Skid Steer |
JCB |
|
L 59 |
Backhoe |
CAT |
|
L 60 |
Backhoe |
CAT |
|
G 44 |
Grader |
CAT |
|
MR 17 |
Roller |
Bomag |

Parks & Gardens
|
Monthly Report December 2013 Area |
Comments |
|
Playgrounds |
Inspections were carried out as per the programmed schedule, including playgrounds in the satellite towns, and general maintenance performed to ensure safety. Adventureland has been the target of on-going vandalism which resulted in closure of the maze for a period. The Rotary Club of Esperance has agreed to assist Council in performing maintenance on Adventureland’s aging playground. This will commence upon receiving the necessary spare parts. |
|
Mowing |
Programmed mowing continued up until the Christmas Break. Due to a number of staff being on Leave over this period, the town will not be serviced again until Return to Work 6th January 2014. All satellite towns were serviced, and main arterial roads around the Esperance town site mowed. Due to sand build up over the years two traffic islands on the corner of Dempster Street and The Esplanade had their top surface removed. Although appearing bare at present, turf regeneration will be monitored and steps taken, where necessary, to restore this turf area. The aim was to reduce maintenance hours by bringing the turf level back to kerb height. |
|
Irrigation |
A new bore was drilled at the Esperance Oval as part of the irrigation upgrade. Contractors will begin installing the new infield system mid January 2014. A large quantity of sand from the old bore has been pumped through the current pipe work, affecting sprinklers and valves, and indicates damage to the bore screen or its base. Due to the forthcoming upgrade, a decision was made not to waste resources repairing the system. |
|
Gardens |
Garden bed maintenance was carried out as per the programmed schedule. Streets within the Esperance town site are being sprayed for weeds. Nursery orders for the replacement planting program are being collated. A number of Norfolk Island Pine trees were treated for mealy bugs (a scale insect). These trees are being monitored for any signs of decline. |
1.1.1 Rural Road Works
|
WORKS COMPLETED |
FUNDING SOURCE |
||
|
Fisheries Road |
East of Tagon Road |
Repairs - Water Damage |
MUNI |
|
Merivale Road |
East of Daniels Road |
Repairs – Water Damage |
MUNI |
|
Coolinup Road |
South of Heywood Road |
Resheet |
MUNI |
|
Neds Corner Road |
South of Mills Road |
Repairs – Water Damage |
MUNI |
|
WORKS IN PROGRESS |
FUNDING SOURCE |
||
|
Coolinup Rd |
North of Scaddan Rd |
Reconstruction |
R2R |
|
Parmango Road |
North of Heywood Road |
Reconstruction |
MRWA |
|
Tagon Road |
Between Fisheries Road & Merivale Road |
Resheet |
MUNI |
|
Fisheries Road |
East of Tagon Road |
Resheet |
MRWA |
|
Parmango Road |
North of Shearer Road |
Limestone Resheet |
MRWA |
|
Gibson East Road |
East of Highway 2km |
Reconstruction |
R2R |
|
Fisheries Road |
SLK 28.19 to 30.66 |
Reseal |
MRWA |
|
WORKS PROGRAMMED |
FUNDING SOURCE |
||
Rural & Town Works
|
WORKS COMPLETED |
FUNDING SOURCE |
||
|
Hicks St & Windich St Intersection |
North to South side of Hicks St |
Drainage Works |
MUNI |
|
Twilight Beach Road |
11 Mile Beach Carpark |
Drainage Works & Carpark Installation |
MUNI |
|
WORKS IN PROGRESS |
FUNDING SOURCE |
||
|
Starr St |
Gibson Townsite |
Extend bitumen by 60m |
PRIVATE WORKS |
|
Myrup Rd |
Truck Wash |
Construction |
GRANT |
|
Industrial Area |
Gilpin St & Sims St |
Kerbing |
MUNI |
|
Commons Trail |
Pink Lake to Twilight Beach |
Construct Last 500m |
MUNI/GRANT |
|
WORKS PROGRAMMED |
FUNDING SOURCE |
||
|
Esplanade |
Esplanade GPT |
Drainage Works |
MUNI |
|
Forrest Street |
Jane Street to Padbury Street |
Drainage Works |
MUNI |
|
Foreshore Upgrade |
Tanker Jetty Carpark |
Construct |
GRANT |
1.1.1
28 January 2014 Page 138

1.1.1 Subdivision Decisions-Western Australian Planning Commission
Subdivision Decisions - Western Australian Planning Commission from 1 December 2013 to 31 December 2013 |
||||||
|
Date Received: |
Application Number: |
Applicant: |
Location: |
Proposal: |
Subdivision Type: |
Determination: |
|
27 September 2013 |
148806 |
Esperance Surveys |
Lot 558 South Coast Highway, Dalyup |
1 to 2 lots |
Green Title |
12 December 2013 |
|
10 September 2013 |
148694 |
Graham Gath Surveys |
Lot 1808 Merivale Road, Condingup |
3 to 3 lots |
Green Title |
2 December 2013 |
28 January 2014 Page 140
1.1.2 State Administrative Tribunal Proceedings Update
Nil
1.1.3 Health Services
Nil
1.2 EXECUTIVE SERVICES
1.2.1 Human Resources
1. Recruitment
Current Recruitment
Project and Reporting Officer
Technical Officer – Fleet Coordination
Recent Appointments
Paul Goodyear – Waste Management Supervisor
Commenced 9 December 2013.
On-Usa Burge – Cleaner – Bay of Isles Leisure Centre
Commenced 18 December 2013.
Helen Hall – Executive Assistant
Commenced 2 January 2014.
Deb Grant – Project Officer – Community Connection – Volunteer Resource Centre
Commenced 6 January 2014.
Robbie Schmitt - Leading Hand Drainage
To commence 13 January 2014.
Luke Lowdon - General Hand Drainage
To commence 13 January 2014.
2. OSH REPORT
2.1 Incidents
Shire Employees 7
Contractors/Volunteers 0
Equipment 0
General Public 0
Total number of incident reports 7
New Compensation Claim 2
Continuing Workers Compensation Claims 6


2.2 OSH Inductions
Shire Employees 2
Contractors 0
Work Experience 0
2.3 Site Visits
· Depot Brazier Street
· Bay of Isle Leisure Centre
· Wylie Bay Recycling Plant
· Town Foreshore
· Library
3. Lost Time Injury Frequency Rate (LTIFR)
The following graph shows the amount of lost time injuries per one million hours.

*Note: Frequency Rate is the number of Lost Time Injury and Diseases for each one million hours worked. Formula for calculating the frequency rate is: No. LTI’s/No. Hrs Worked x 1,000,000.
Number of hours worked is defined as total number of hours worked by employees covered by workers compensation system during this period.
1.2.2 Occupational Safety and Health Report for December 2013
1.3 COMMUNITY SERVICES
1.3.1 Ranger Services
1.3.2 Tourism and Events Report
Civic Centre:
Entertainment:
There was one show presented in December.
Show Reports:
Saturday 14th – Western Australian Symphony Orchestra: “Symphony in the City” Simulcast
· Total attendance of 96 – all complimentary.
· Advertising – Done by WASO plus Radio (ABC local), Patron Mail, Posters, Council Connections and Facebook.
· Bar takings of $68.00
· Thanks to Lynda Horn and Rod Hilton for assistance.
Shows on the way:
15 February – Opera In The Park (Simulcast)*
1st March – “Flak”
15 March – Celtic Illusion*
29th March – Get Hypnotised
29th May – “Tashi”
30 May – Shakespeare’s “As You Like It” (Black Swan Simulcast)*
7th June – Melbourne International Comedy Festival Roadshow
30th June – “Pete The Sheep”
* - Venue hire.
Venue Hire / Use:
December had one meeting day and one private function as well as the school graduation ceremonies for EACS, Wongutha CAPS, Esperance Primary School and Esperance Christian Primary School. The Civic Centre was also the venue for the annual Seniors Christmas Dinner and Thank A Volunteer Day function.
Forward Bookings:
January is traditionally quiet with only two wedding receptions currently booked.
______________________________________________________________
Visitor Centre:
December was as busy as expected with nothing unexpected or out of the ordinary experienced.
Statistics:
Visitor Centre Door Entries
Accommodation sold
Commission earned from sales
1.3.3 Library Services.
Library Information for “Councillors’ Information Bulletin” January 2014
Staff and services
· Public Library Structural Reform update:
Ø Nil this month
· Library Manager schedule of meetings/training for January:
ü Will attend Leadership Group meeting January 9
· Locals and Summer Visitors are busily using the library for a variety of recreational purposes and staff are also busy planning 2014 services, projects and activities
· The World War 1 Commemoration Project Team will be applying for funding from LotteryWest (in conjunction with the WA Museum) and also the Anzac Centenary Grant. Funding will be sought for a series of informative free-standing panels and also the construction of a Gallipoli Battlefield Diorama
· Representatives from the Esperance Library Friends group attended various end-of-year assemblies to present “Reading Encouragement” Book Awards to primary school students in each school within the Shire
Building and Facilities
· Hardwired smoke alarms are being installed in the library
· An Occupational Health & Safety inspection of the library will take place mid-January
Promotions
· Summer Holiday Activities continue with 3 January activities for children aged 7 and over and a Possum Magic 50th Birthday Party for the under 7s. The December activity sessions were well attended
· Esperance Library Friends(ELF) held a pre-Christmas Book Sale at the library in December that raised over $900 towards new library resources. They will hold a bigger ex-Library stock Discard Sale in mid-January
· Displays in January include Town Revitalization scenarios, Summer Reads and Welcome to a New Year
1.3.4 BOILC
|
.
|
Bay of Isles Leisure Centre Update |
|
||
|
Directorate: Functional Area: Report Period:
|
Community Services Bay of Isles Leisure Centre December 2013
|
|
||
|
Attendance & Income |
|
|||
Income Stats
Total income in December 2013 is 16% lower than December 2012. However compared to November 2013 income was up $26156.
|
INCOME $ |
|
||
|
|
Dec-12 |
Nov-13 |
Dec-13 |
|
Pool Admissions |
$28,932.00 |
$14,107.21 |
$26,287.56 |
|
Pool Membership |
$4,676.00 |
$3,532.86 |
$2,868.72 |
|
Gym Admissions |
$3,206.00 |
$2,555.29 |
$2,488.50 |
|
Gym Membership |
$7,156.00 |
$4,528.58 |
$4,032.41 |
|
Class Admissions |
$2,352.00 |
$2,636.26 |
$3,272.70 |
|
Class Membership |
$2,484.00 |
$1,542.03 |
$2,249.36 |
|
Hire Equipment |
$355.00 |
$185.46 |
$745.94 |
|
Misc Income |
$1,352.00 |
$293.90 |
$418.55 |
|
Swim School |
$22,563.00 |
$1,689.00 |
$15,432.00 |
|
Creche |
$601.00 |
$703.56 |
$669.82 |
|
Kiosk |
$6,348.00 |
$8,148.60 |
$8,529.07 |
|
Pro Shop |
$858.00 |
$1,702.90 |
$1,274.20 |
|
Room Hire |
$2,325.00 |
$1,056.00 |
$1,534.50 |
|
Sporting Club Hire (ISS & Tennis) |
$465.40 |
$1,023.90 |
$58.18 |
|
TOTAL INCOME |
$83,673.40 |
$43,705.55 |
$69,861.51 |
|
**10% commission from Sporting Club Hire $581.82** |
|||
Attendance Stats
Overall attendance was down 22% from December 2012; however attendance was up 20% compared to November 2013.
Main differences from December 2012 were Aquatic Member down 20%, Aquatic Casual down 12%, Gym Member down 58%, Classes down 47% and crèche down 12%.
|
ATTENDANCE # |
|||
|
|
Dec-12 |
Nov-13 |
Dec-13 |
|
Aquatic - member use |
1955 |
1971 |
1549 |
|
Aquatic - casual use |
8834 |
4546 |
7799 |
|
Gym - member use |
2263 |
1195 |
940 |
|
Gym - casual use |
278 |
255 |
245 |
|
Classes Spin - member/casual use |
1385 |
414 |
261 |
|
Classes - member use |
956 |
543 |
|
|
Classes - casual use |
|||
|
Creche - member use |
252 |
335 |
192 |
|
Creche - casual use |
|||
|
Creche - staff use |
27 |
30 |
|
|
Sports Hall use |
515 |
32 |
214 |
|
Silver/Gold Visit via Node 1/2 |
322 |
641 |
563 |
|
TOTAL USE |
15804 |
10372 |
12336 |
Membership Statistics
Membership excluding Multi-Passes has decreased overall by 6.5% from December 2012 and 8.5% less than November 2013.
Multi-Passes increased 6% from November 2013.
For the month of December the centre has sold 125 new memberships
o 86 x Multi-Passes
o 5 x 12months
o 19 x 6months
o 15 x 3months
For the month of December the centre has had 5 members renew their membership
o 3 x Mini Membership
o 0 x 12months
o 2 x 6months
o 0 x 3months
Table indicates the number of expired memberships, renewed memberships and new memberships (joining) over the past 12 months.
|
|
Dec-12 |
Jan-13 |
Feb-13 |
Mar-13 |
Apr-13 |
May-13 |
Jun-13 |
Jul-13 |
Aug-13 |
Sep-13 |
Oct-13 |
Nov-13 |
Dec-13 |
|
Expired |
83 |
55 |
132 |
94 |
94 |
192 |
158 |
191 |
230 |
156 |
194 |
214 |
151 |
|
Renewed |
53 |
86 |
88 |
62 |
88 |
55 |
69 |
66 |
79 |
24 |
19 |
26 |
5 |
|
Joining |
95 |
200 |
162 |
75 |
154 |
64 |
88 |
180 |
205 |
166 |
205 |
117 |
125 |
203 members have not renewed their membership in the last two months. Breakdown of non-renewals: 111 – 3 month, 50 – 6 month and 42 – 3 month. Chart indicates Non-Renewal Distribution between Nov-Dec 2013

Kiosk, Pro Shop and Crèche
KIOSK
· 34% increase in sales compared to December 2012, and an 5% increase in sales from last month (Jul-$5898, Aug-$5603, Sep-$7511, Oct-$8123, Nov-$8148, Dec-$8529)
· Annual Budget; Expenditure 43%, Income 37%
PRO SHOP
· 45% increase in sales compared to December 2012 and a 25% decrease in sales from last month.
· Annual Budget: Expenditure 52%, Income 49%
CRECHE
· Visit’s are down 33% (222) from last month (335), however the crèche closed on the 20th December for the xmas break.
· Shire Staff – Crèche Usage makes up 15% of total crèche usage in December 2013.
· Total usage for July 2013 to December 2013 compared to January 2013 to June 2013 was down 6%. Shire staff usage for July 2013 to December 2013 was 279 compared to 472 for January to June 2013.
|
July 13 – Dec 13 |
Creche Use % |
|
|
Total |
1802 |
|
|
Paying |
1149 |
64% |
|
Gold Members |
376 |
21% |
|
Shire Staff |
279 |
15% |
Health & Fitness:
· H&F class participants number 861 for December 2013 with an average attendance of 7.55 per class. When compared to December 2012, a slight decrease is noted
· It must be noted Classes ceased for three weeks over the xmas period (20th Dec- 12th Jan)
Fitness Classes Total participants and averages for December compared to previous years.

Class participants and averages per class.
|
|
Total |
Average |
|
S Pilates |
60 |
6.67 |
|
Thump |
67 |
7.44 |
|
Pump |
179 |
9.42 |
|
Spin: |
95 |
7.92 |
|
Postnal |
0 |
0 |
|
PowerSpin |
88 |
6.29 |
|
Balance |
146 |
8.14 |
|
Circuit |
43 |
7.17 |
|
HealthWise |
34 |
5.67 |
|
PostNatal |
0 |
0 |
|
ABT |
125 |
13.89 |
|
AquaFit |
58 |
7.25 |
|
StepnTone |
26 |
8.67 |
|
|
861 |
7.55 |
Please note: HealthWise is a gym supervision program provided for senior members.
½ yearly comparison indicates that Class attendance is growing each year.

Swim School:
· 230 participants are currently enrolled in swimming lessons for commencement of Term 1 2014.
Operations
Maintenance
· Chlorine delivery lines in all pools were changed from flexible hose (that has deteriorated over time in the past) to hard chlorine rated pipe work. Local Plumber Glen Wilson completed the work reducing cost by several thousand dollars on the original quote from Hydramet.
· Industry compliant hand rails replaced non compliant ones in our Lagoon pool. This required the Lagoon pool to be closed and water levels lowered for the work to take place. Spa, hydro pool and Lagoon pool now all have the much stronger, industry compliant hand rails in place.
· Ceilings in the entrance and passage way of the facility were replaced or repaired and then painted. This work took place where some water damage was present. Original leaks were removed and monitored for some time before the work went ahead.
Staff and Training
· Facility Cleaner Roy Manser resigned to retire from the work force during December. Nok Burge has filled the position and is settling in to her new role.
· Swimming Pool Operator Andrew Hilton resigned from his position early in December. This leaves the centre with a bare minimum of qualified Swimming Pool Operators to keep the aquatic area operational. The position of casual pool operator was advertised attracting some unqualified inexperienced applicants. Interviews will take place in January. In addition, Swim School Supervisor Michaela Florisson will attend Swimming Pool Operator training in March.
· Swimming pool lifeguard Stuart Smith resigned during December, Stuart is relocating to Bunbury with his family. With Stuarts departure and the impending departure of 2 more lifeguards heading off to start university studies early in the new year we will need to recruit new staff. Negotiations to attract a qualified lifeguard from Mount Barker to join our team failed following informing the candidate of the pay rate on offer.
· Full Lifeguard training course will be held at the Leisure Centre in March 2014.
Water
Facility water consumption (litres) for this financial year and for the last 2 years for the same period is displayed in the chart below. Several maintenance tasks requiring removal of pool water this financial year have contributed to higher water use than last year.

Power
The Chart below shows power consumption in terms of electrical units used, comparing total use at this point in the financial year. Although slightly higher than last year we are similar to 11/12.

Club Development Officer
· The BHP Billiton Aquatic Super Series ended up being a fantastic couple of days with the Olympic athletes totally loving Esperance and the community. The weather was very hot which was a little testing but it did showcase our beautiful beaches etc.
1. EASC had about 40 children attend the session on Monday evening with the athletes.
2. CDO and the BOILC put on a signing session and a sausage sizzle following the Swimming Clubs activities which were popular. Not too many other than the swimming Club and athletes attended.
3. CDO took the athletes to the Esperance Primary then Castletown primary schools. The 8 athletes and coaches talked about each of their Olympic experiences before a Q & A at each school. 44 degrees at 1pm on this day. Back to the BOILC for a free mass participation session with the Swimmers. About 45 children had almost 1 on 1 coaching followed by a game of Water Polo. The nets were located at the back of the BOILC and proved a real hit for all involved
· Esperance Inclusion January School Holiday Program, Inclusion WA school holiday program coming up on the 14th to 17th of January 2014. As you can see it would be great to be a kid again with the variety of FREE activities on offer.
1. Tues 14 Jan: Junior Volunteer Fire Brigade 10am - 12noon at Esperance Football Oval
2. Tues 14 Jan: Beach Volleyball 4.30pm -6.30pm at Esperance Beach Volleyball Courts
3. Wed 15 Jan: Badminton (Must be 10 years or older) 9.30am -11.30am at
4. Badminton Courts (Greater Sports Ground)
5. Wed 15 Jan: Ultimate Frisbee 3.30pm -5.30pm at Soccer Pitch (Greater Sports Ground)
6. Thurs 16 Jan: Netball 10am-12noon at Indoor Sports Stadium
7. Fri 17 Jan: Ballroom, New Vogue, Rock & Roll and Latin Dance 5pm - 7pm at RAOB Hall
· Kalgoorlie Visit, CDO travelled to Kalgoorlie with the BOILC team. Met with Casey Grice to plan the workshops etc for the next 6 months. Casey had a CDO Operational Plan for 2013/2014 that has a time line on most of the AKRS fro 2013/14. CDO is happy with this plan.
Also attended a KidSport VC link with Perth whilst in Kalgoorlie. This was all about getting Clubs to register to KidSport on line via Clubs Online. CDO is not sure if this will be well received by Club Land.
Then met with Brad Stacey and George Bush from the City of Kalgoorlie/Boulder to talk about the issues the CKB are having with the new reserves and facilities they have planned. Having a master plan has been the key to the CKB progressing at all in this process.
Also attended a Population Health meeting whilst in the Goldfields.
1.4 CORPORATE SERVICES
2. INFORMATION CORRESPONDENCE
Nil
3. MINUTES AND NOTES OF MEETINGS HELD DURING PERIOD
NIL
4. PAPERS
NIL
28 January 2014 Page 160
Appointment of Community Members to Council Committees
|
Author/s |
Trevor Ayers |
Manager Economic & Business Development |
|
Authorisor/s |
Matthew Scott |
Chief Executive Officer |
File Ref: F12/445
Applicant
Internal Report
Location/Address
N/A
Executive Summary
Following the review of Council Committees, nominations to fill the community member positions were called for. A decision is now required regarding to confirm the successful applicants.
In addition during this period we also received requests from two organisations asking to be added as organisational members of different committees. These requests also need to be considered by Council.
Finally, not all committees received enough applications to fill all available positions. A decision is required on whether Council wishes to look to fill these vacant positions.
Recommendation in Brief
That Council
1. Appoint all community members who applied for positions on Council committees
2. Amend the Terms of Reference for the Esperance Museum Management Committee and the Lake Monjingup Community Development Group to transfer one community representative position on each committee to an organisation member as per the nominations received.
3. Enable those Council committees with unfilled community member positions to recommend additional members to Council to fill these positions if they identify interested people they believe would add value to their committee.
Background
Council requested the CEO to advertise for expressions of interest to fill the community positions within Council Committees as part for the resolution that adopted the revised Terms of Reference, at the November Council meeting.
The committees (and number of community positions available) are as follows:
· Art Collection Advisory Committee (2 positions)
· Esperance Museum Management Committee (2 positions)
· Esperance Roadwise Committee (2 positions)
· Esperance Twin Towns Committee (5 positions)
· Greater Sports Ground Redevelopment Committee (5 positions)
· Lake Monjingup Community Development Group (6 positions)
Advertising for these positions commenced via Council Connections in December and continued through into January, with Council’s website and social media platforms also being utilised to provide maximum exposure throughout the community. Previous committee members were also individually advised to ensure they had the opportunity to continue to be involved.
Nominations closed on the 14th of January (being the latest date possible that still enabled a report to be included in the January Agenda), with the following nominations received:
|
Committee |
Positions Available |
Nominees |
|
Art Collection Advisory Committee |
Two (2) positions |
Nil |
|
Esperance Museum Management Committee |
Two (2) positions |
Family History Group |
|
Esperance Roadwise Committee |
Two (2) positions |
Rob Dummermuth |
|
Esperance Twin Towns Committee |
Four (4) positions |
Doug Murray Amanda Thomas Catherine Davies Stephanie Stacey |
|
Greater Sports Ground Redevelopment Committee |
Five (5) positions |
Wayne (Buck) Rodgers Melisa Rowe |
|
Lake Monjingup Community Development Group |
Six (6) positions |
George Starcevich Kylie Bishop Esperance Regional Forum Norma Warren Dave Cowap |
Officer’s Comment
The advertising period was not ideal as it has stretched across the Christmas period, however delaying the closing date any further would have resulted in committee membership remaining unresolved until the February Council meeting which would, in turn delay the ability of these committees to hold a meeting until March at the earliest.
All current nominees have been recommended for positions on the committees they have applied for as no committee has had more nominees than the number of available positions and all nominees are believed to have the appropriate skills and passion to impact positively on the respective committee’s operations.
In addition the Family History Group has applied for inclusion as an organisational member of the Esperance Museum Management Committee and Esperance Regional Forum has applied for inclusion as an organisational member of the Lake Monjingup Community Development Group. It is believed that both these organisations have the potential to be valuable members of these committees and therefore their inclusion is supported. As neither of these committees received enough expressions of interest to fill their available positions it is recommended that the community positions be reduced by one (1) in each instance, therefore maintaining the committee size and allowing for the fact that these nominations were effectively organisations applying for the community representative position in the first place. Alternatively Council could simply increase the membership of these two committees; this has not been suggested in this instance due to both committees still having an unfilled community representative position if the current recommendation is supported.
With all committees, (except the Esperance Twin Towns Committee) still having unfilled community positions it is also recommended that each committee be given the opportunity to canvass potential members they believe would assist their activities and recommend additional community members to Council if they should so wish. Alternatively Council could decide to re-advertise these positions to provide all community members with an additional opportunity to nominate for these committees.
Consultation
Expressions of interest were advertised in the Esperance Express through Council Connections in both December and January, as well as via Council’s website and social media platforms. Current community members of these committees as at the last Council elections were also advised individually to ensure they were aware of the nomination period in the event that they were interested in remaining on the committees.
Council officers involved in each of these committees are aware of each of the nominations received.
Financial Implications
Nil
Asset Management Implications
Nil
Statutory Implications
The statutory implications associated with this item are contained within Subdivision2, Division 2, Part 5 of the Local Government Act 1995.
Policy Implications
This item is in accordance with Council Policy EXEC 001: Council Committee Terms of Reference, the Shire of Esperance Standing Orders Local Law and each individual committees adopted Terms of Reference.
Strategic Implications
Strategic Community Plan 2012-2022
Theme 4: Civic Leadership
Strategy 4.1: Ensure Councillors are representative of the community and provide strong and visionary
leadership.
Corporate Business Plan 2013/2014 – 2016/2017
Action 4.1.1: Facilitate Councillors requirements to represent the community.
Environmental Considerations
Nil
Nil
|
That Council 1. Appoint the following community members as per the following table:
2. Amend the Esperance Museum Management Committee Terms of Reference to include ‘One delegate as nominated by the Family History Group’ and reduce the community representatives to a maximum of one position. 3. Amend the Lake Monjingup Community Development Group Terms of Reference to include ‘One delegate as nominated by Esperance Regional Forum’ and reduce the community representatives to a maximum of five positions. 4. Advise the Art Collection Advisory Committee, Esperance Museum Management Committee, Esperance Roadwise Committee, Greater Sports Ground Redevelopment Committee and Lake Monjingup Community Development Group that if they identify additional potential community representatives that would add value to their committee, a recommendation can be made to Council within any committee meeting that additional members be appointed to the respective committee. Voting Requirement Absolute Majority
|
Ordinary Council: Agenda
28 January 2014 Page 164
13. Reports Of Committees
14. Motions of which Notice has been Given
15. MEMBERS QUESTIONS WITH OR WITHOUT NOTICE
16. URGENT BUSINESS APPROVED BY DECISION
28 January 2014 Page 165
17. MATTERS BEHIND CLOSED DOORS
Officer’s Comment:
It is recommended that the meeting is behind closed doors for the following item, in accordance with section 5.23(2) of the Local Government Act 1995.
Objections to Proposed Lease - Esperance Airport Car Hire Desk 4
Confidential Item
This report is considered confidential in accordance with the Local Government Act 1995, as it relates to a matter that if disclosed, would reveal information about the business, professional, commercial or financial affairs of a person, where the information is held by, or is about, a person other than the local government (Section 5.23(2)(e)(iii)).